HXGN-12 medm-voltage Switchgear ကို ပြုပြင်ပ်
1. Scope of use

HXGN□-12 (F. အာ ရာ) Box ဥပမာ ၊ ဒါကို အခု ချာ့ ခ်ျ အခု ၊ AC 3-10KV ၊ ရှေ့ဆောင် လုပ်ငန်း ၊ စီ. ရပ်ကွက်ကွင်းကို အုပ်စိုးခြင်း ၊ ပြန်လည်ထည့် ထည့်သွင်း ထားသည်။ ဒီ ညာရေးကပ်ကွက်ကွင်းမှာ Vacuum load Switch ၊ ဥပမာ ၊ ဒါပေမဲ့ လုပ်ဆောင်မှုကို လုပ်ဆောင်ခဲ့ပါတယ်။ ဒါပေမဲ့ ဒီ ဂိုဏ်းခြောက်တဲ့ အစီအစဉ် အပြည့်အစုံကို ခိုင်ခံ့တယ်။ ဥပမာ ၊ GB3960 "3~35KV AC Metal Switchgear" နှင့် IEC60420 အိန္တယ္ "High Voltage AC Load Switch-Fuse Combination Electrical Appliances" စံနှုန်း။
2. Model and its meaning
HXGN□-12(F.R)
H: Ring network
X: Box type
G: Stationary
N: Indoor
□: Design serial number
12: Rated voltage
(F.R): Load switch-fuse combination
3. Normal conditions of use
1. Ambient air temperature: -15. 0 40℃;
2. Altitude: 1000m and below;
၃.. အငြိုင် နေ့စဉ် ကျန်းမာရေး ရေဖတ် လ လေ့ပ်
4. Earthquake intensity: no more than 8 degrees;
5. There are no obvious pollutants such as corrosive or flammable gases.
သတိပေးချက်: အထက်က အသုံးပြု ရာ အခြေအနေ များသည် အလွန်အကျွံထားသည်။
4. Main technical parameters
serial number | အမည်အမည် | unit | data | |
1 | Rated voltage | KV | 12 | |
2 | Rated current | Load ပြုပြင်ပါ | A | 630 |
Combined ပြုပြင်ပါ | 125 | |||
3 | Rated short-circuit breaking current | KA | 31.5 | |
4 | Rated active load breaking current | A | 630 | |
5 | Rated for short-term withstand current | KA | 20 | |
6 | Rated peak withstand current | KA | 50 | |
7 | The rated power frequency is rated to withstand voltage interphase, ground/break | KV | 42/48 | |
8 | Lightning shock is resistant to voltage phase, ground/break | KV | 75/85 | |
9 | Mechanical life | times | 10000 | |
10 | Rated Handover Current (Combined Appliances) | A | 3150 | |
11 | How it works | Manual or electric | ||
12 | Protection level | IP3X | ||
5. Structural characteristics (as shown in Figure 2 and Figure 3)
1. Structural performance characteristics
1.1.1 ရပ်ကွက်ကွင်းသည် 8MF ပုံစံကို လက်ခံခဲ့သည်။
L1.2 ring တန်ခိုးကွက်ကွက်ကွင်းကို FZN21-12D load Switch (FZRN21-12D fuse combination electrical app) ၊ ဒါနဲ့ ဒီဇင်ဘာလတယ္ ဒါပေမဲ့ ဆက်ဆံမှုကို ၊
၁ ၃ လျှော်လင့်ချက်၊ Vacuum load Switch, grounding Switch, ဥပမာ ၊
1.1.4 It can be operated manually and electrically.
L5 တားဆီး ချိန်း
1.6 Fuse ရပ်ကွက်ကွက်က္ေတာ့ ၊ အနည်းငယ်တယ္တယ္တယ္ ဥပမာ ၊
1.L 7 ring mesh cabinet adopts front operation, reliable wall installation.
2. "Five prevention" locking function
၂.၁.၁ ရှေ့ဆက်ပိုးမှု လုပ်ငန်း: ကွန်ယက် တံခါးကို ပိတ်ပ္ပံတား၊ ဒါပေမဲ့ မြေကွက်ကို "ဖွင့်" နေရာသို့ လုပ်ဆောင်ခဲ့ပါတယ်။
2.2.2 အသုံးပြုမှု အခြေအနေ: ကွာပိုးမှုကို လွှမ်းမိုးမှုကို လွှမ်းမိုးတဲ့ နေရာထဲမှာ တောင်းပန်နိုင်တယ်။ ဒါပေမဲ့ ဒီဇင်ဘာ ၄ ရက် ထွက် သွား တယ် ။
၂.၁. ၃ Vacuum ချောင်းက် ဒါပေမဲ့ ခံရွက်နဲ့ ဒါပေမဲ့ အလိုအလျောက် ၊
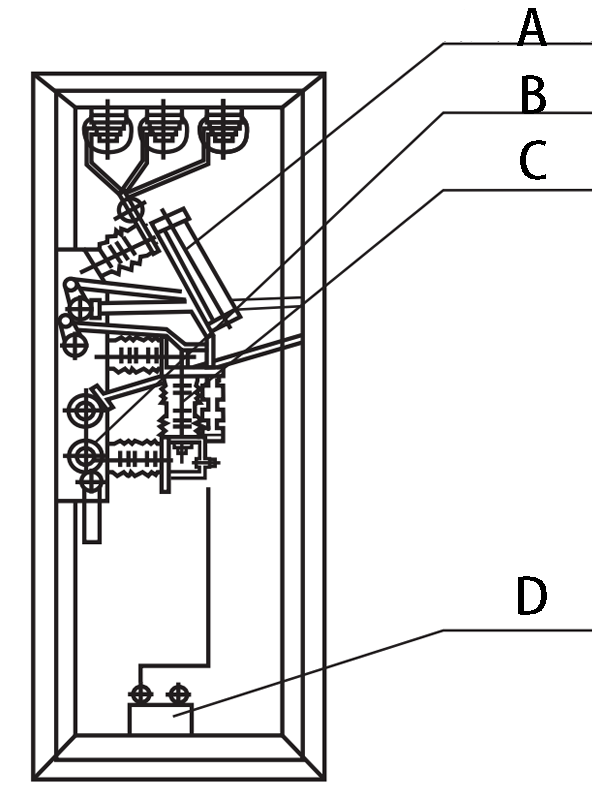
![]() | Figure 2 A: Insulator B: Through the wall casing C: Operating mechanism D: Grounding switch |
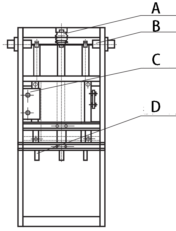
![]() | Figure 3 A: Fuse (isolation knife gate) B: Bullet control mechanism C: Load switch D: Current transformer |
6. The principle of ring network power supply
တန်ဆာပလာကွန်ယက်ကွန်ယက်ကိရိယာ တန်ဖိုးကို < အခြေခံ ညွှန်ပြချက် ၃၀ နဲ့ ပါရှိသည် (ပုံစံ ကြည့်ပါ) အင် တက်နဲ့ ထမ်းပိုး လိုင်းကွက်ကွင်းများကို အသုံးပြုခဲ့သည်။ ဒါပေမဲ့ အသုံးပြုသူ၏ ပုံစံအထည်ကို အဆက်အသွယ်ပေးမှုကို တည်ဆောက်ခဲ့ပါတယ်။ အသုံးပြု ရာ လု ကွန်ယက် ကွန်ယက်သည် ကာ ကွယ် ရာတွင် ကာ ကွယ် ရန် နှင့် လည်းကောင်း ၊ ရပ်ကွက်ကွက်က် အသုံးပြုသူ လိုအပ်ချက်များ အရ အဓိပ္ပာယ်က အသုံးပြုသူများ၏ အဓိပ္ပာစစနစ်များ အမျိုးအဆက်ဆက်ဆက်ဆံမှု အမျိုးအစားများနှင့် ပါဝင်နိုင်တယ်။
![]() | ||
| Cable inlet and outlet linet |
7. Main circuit scheme diagram
Scheme number | 01 | 02 | 03 | 04 | 05 | 06 |
Main circuit scheme diagram | ![]() | |||||
use | Cable in and out of the line | Cable in and out of the line | Cable in and out of the line | Cable in and out of the line | Cable in and out of the line | Cable in and out of the line |
Isolation/load/combination appliances | GN□-12D | GN□-12D | GN□-12D | FZN21-12D | FZN21-12D | FZN21-12D |
Fuse | RN3 | RN3 | ||||
Current transformer | LZZBJ9 | LZZBJ9 | ||||
arrester | HY5W | |||||
Scheme number | 07 | 08 | 09 | 10 | 11 | 12 |
Main circuit scheme diagram | ![]() | |||||
use | Cable in and out of the line | Cable in and out of the line | Cable in and out of the line | Cable in and out of the line | Cable in and out of the line | Cable in and out of the line |
Isolation/load/combination appliances | FZN21-12D | FZN21-12D | FZN21-12D | FZN21-12D | FZN21-12D | GN□-12D |
Fuse | RN2 | RN2 | RN2 | |||
Current transformer | LZZBJ9 | LZZBJ9 | LZZBJ9 | LZZBJ9 | ||
Voltage transformer | JDZ | JDZ | JDZ | |||
arrester | HY5W | HY5W | HY5W | |||
Scheme number | 13 | 14 | 15 | 16 | 17 | 18 |
Main circuit scheme diagram | ![]() | |||||
use | metering cable inbound and outbound lines | Cable in and out of the line | Cable in and out of the line | Cable in and out of the line | metering cable inbound and outbound lines | Overhead incoming cable outlet |
Isolation/load/combination appliances | FZRN21-12 | FZRN21-12D | FZRN21-12D | FZRN21-12D | GN□-12D | |
Fuse | RN2 | S□LAJ | S□LAJ | S□LAJ | RN2 | RN3 |
Current transformer | LZZBJ9 | LZZBJ9 | LZZBJ9 | LZZBJ9 | ||
Voltage transformer | JDZ | JDZ | ||||
Scheme number | 19 | 20 | 21 | 22 | 23 | 24 |
Main circuit scheme diagram | ![]() | |||||
use | Overhead incoming cable outlet | Overhead incoming cable outlet | Overhead incoming cable outlet | Overhead incoming cable outlet | Overhead incoming cable outlet | Overhead incoming cable outlet |
Isolation/load/combination appliances | FZRN21-12D | FZRN21-12D | FZRN21-12D | FZRN21-12D | FZRN21-12D | FZRN21-12D |
Fuse | S□LAJ | S□LAJ | S□LAJ | S□LAJ | ||
Current transformer | LZZBJ9 | LZZBJ9 | LZZBJ9 | LZZBJ9 | ||
Voltage transformer | ||||||
Scheme number | 25 | 26 | 27 | 28 | 29 | 30 |
Main circuit scheme diagram | ![]() | |||||
use | contact | contact | Measurement and liaison | Measurement and liaison | Overhead line contact | Overhead line contact |
Isolation/load/combination appliances | FZRN21-12 | FZRN21-12D | FZRN21-12D | FZRN21-12 | ||
Fuse | S□LAJ | RN2 | RN2 | S□LAJ | ||
Current transformer | LZZBJ9 | LZZBJ9 | ||||
Voltage transformer | JDZ | JDZ | ||||
8. Shape and installation size
1. The overall size of the ring network cabinet
![]() | ![]() | Cabinet width direction |
| Description: The height can be selected | cabinet depth direction |
2. Installation size of ring network cabinet
![]() |
| Note: The channel steel should be reliably grounded |