We will present the performance, safe operation methods, and technical parameters of KYN 61-40.5 မီထန်-ဝဲဂိုင်
Model and meaning
K Y N 61 - 40.5 / □ - □
└─Rated Breaking Short Circuit Current (kA)
└───Rated current (A)
└─────── Rated Voltage (kV)
└────────── design serial number
└ ───────────── indoors
└────────────── Removal type
└─────────────── Metal armor
Use environmental conditions
The upper limit of ambient temperature is 40°C, and the average measured value within 24 hours does not exceed 35°C.
Lower limit -15°C:
Altitude: no more than 1000 meters above sea level;
Relative humidity: daily average not more than 95%, monthly average not more than 90%;
Earthquake intensity: no more than 8 degrees;
Water vapor pressure: the daily average does not exceed 2.2kPa, and the monthly average does not exceed 90%.
Technical parameters
Main technical parameters of vacuum ပြုပြင်ပါ
serial number | project | Dimensions | parameter |
1 | Rated voltage | kV | 40.5 |
2 | Lianchang | A | 12501600 2000 |
3 | Rated frequency | Hz | 50 |
4 | Rated for short-term withstand current | kA | 20 25 31.5 |
5 | Rated peak withstand current | kA | 50 63 80 |
6 | rated power frequency withstand voltage | kV | 95/1 min |
7 | Rated lightning shock withstand voltage | kV | 185 |
8 | Rated short circuit duration | S | 4 |
9 | Protection level | IP3X |
Main technical parameters of vacuum circuit breaker
serial number | project | Weaving position | parameter |
1 | Rated voltage | kV | 40.5 |
2 | Rated frequency | Hz | 50 |
3 | rated power frequency withstand voltage | kV | 95/lmin |
4 | Rated lightning shock withstand voltage | kV | 185 |
5 | Rated current | A | 12501600 2000 |
6 | Rated for short-term withstand current | kA | 20 25 31.5 |
7 | Rated short-circuit breaking current | KA | 20 25 31.5 |
8 | Rated peak withstand current | kA | 50 63 80 |
9 | Rated short circuit duration | ms | 4 |
10 | Opening time | ms | 30 S 1 W 60 |
11 | Hehe time | ms | 50 & t W 】00 |
12 | 88 The number of times the current is interrupted in a fixed short circuit | times | 20 |
13 | Mechanical life | times | 10000 |
The main technical parameters of spring operation machinery
အမည်အမည် | unit | numeric value | |
လုပ်ငန်း ၊ | Split coil | V | DC220/110 AC220/110 |
Closing coils | |||
Rated operating current | Split coil | A | O.96(22OV)1.O5I11OV) |
Closing coils | |||
Energy storage motor power | W | 230 | |
Energy storage motor rated voltage | V | DC220/110 AC220/110 | |
Energy storage time | S | w 12 |
Structural characteristics of ပြုပြင်ပါ
GB3906-1991 နှင့် IEC298 စံ နံနက်များ အရ ကျော့က် ဥပမာ ၊ ဥပမာ ၊ အတွင်းပိုင်းကို အတွင်းပိုင်းက တိုက်ခိုက်ခိုက်မှု အခန်းထဲမှာ ခွဲထားပါတယ်။ ဥပမာ ၊ IP3X ရှာဖွေကန်က္ကေတယု ဒါပေမဲ့ သမ္မာကျမ်း စာ က ဤသို့ ရေးသား ခဲ့ သည် – “ကောင်အခွင့် ရှိ တယ် ။
1. Enclosure and partition
CNC စီလိုနဲ့ လှုပ်ရှားမှုကို ပြုလုပ်ပြီး ပြုပြင်ပ် ဥပမာ. ထို့ကြောင့် စုဝေး သော Switchgear သည် တိရစ္ဆာန် များ ၏ ဥပဒေ များ ကို အသုံးပြု နိုင်သည်။ ဒါပေမဲ့ ဒီဇင်ဘာလတယ္ ဥပမာ ၊
2. Handcart
ကားကွက် များသည် သီအိုရီ Breaker Hand ကား ၊ ဥပမာ ၊ ဥပမာ ၊
ကားကွက်မှာ စမ်းသပ်မှု / ညှဉ်းဆဲမှု အခြေအနေ ၊ ဥပမာ ၊ ဥပမာ ၊
3. Circuit breaker compartment
သို့ရာတွင် ၊ စမ်းသပ်မှုရဲ့ အလုပ်အကိုင်အနေအထားများ အကြား သွားရောက်နေစဉ် ၊ အလုပ်များ မဟုတ်ပါ။
ဥပမာ ၊ ဒါနဲ့ ဒုတိယ တံခါးကို ပိတ်ထားပါတယ်။ ဥပမာ ၊
4. Busbar chamber
အဓိပ္ပာ့ ဗ္ဗေဒက္တယ္ ဒါပေမဲ့ အနီးအနား အနီးအနား ဘေး ပန်းစံ များကို ခရီးသွားနေတဲ့ အခါ ဘောဗာ sleeve နဲ့ တိရစ္ဆာန်ဖြစ်ပါတယ်။ ဥပမာ ၊
5. Cable compartment
PT, ground switch, surge arrester and multiple cables can be installed in the cable room.
6. Relay room
ရာဇဝတ်မှု အရာများ၊ ကာ ကွယ်လွန်သော အရာများ၊ ဥပမာ ၊
7. Interlock device
The ပြုပြင်ပါ has a reliable interlock device to ensure the safety of operators and equipment:
![]() | ![]() | ![]() |
| Promote interlocking installation | KYN61-40.5(Z) Armored Handcart Cabinet | Grounding switch |
လုပ်ငန်း ၊ နောက် တံခါးကို မဖွင့်နိုင်ပါ။
ကားကွက်ကွက်ကို အပြည့်အစုံ ထုတ်ယူခဲ့ပြီး သို့မဟုတ် စမ်းသပ်မှု / ညှဉ်းဆဲမှု အခြေအနေကို ချိန်က ချိန်း မြေမှုန့် ကို ပိတ်နိုင်သည်။ ဒါက လုပ်ငန်းကို လုပ်ငန်းကို လုပ်ဆောင်ခဲ့တဲ့ လျှို့ဝှက်ချင်တဲ့ လုပ်ငန်းကို ရှာဖွေရတယ် ဥပမာ ၊
စက်တင်ဘာ / ဆယ်ကျော်သက် အခြေအနေ ၊ ဒါပေမဲ့ ဆက်ဆံ ရေးကို အမည်ပေးပြီး ရှာဖွေက် ဒါပေမဲ့ နောက်ထပ် လုပ်ဆောင်မှုကို အန္တရာယ်တယ် ဥပမာ ၊
Grounding device
In the cable room, there is a separate 6x50mm2 grounding busbar, which can run through the adjacent cabinets and have good contact with the cabinets.
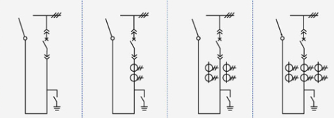
Main wiring scheme
ဒါနဲ့ အဓိက အချက်အလက်များ အတွက် ၂၇ အသုံးပြုပြီး သုံးစွဲမှုက ဒါပေမဲ့ သုံးစွဲသူတို့ ရဲ့ လိုအပ်ချက်များကို လုပ်ဆောင်နိုင်တယ်။ စီ.
Scheme number | 01 | 02 | 03 | 04 | |
Main wiring diagram | ![]() | ||||
Main electrical equipment | Rated current | 125,016,002,000 | |||
New circuit driver ZN85-40.5 | 1 | 1 | 1 | 1 | |
Current transformer LDBJ8(9)-35 | 2 | ||||
Grounding switch IN22-40.5/31.5 | 1 | 1 | 1 | 1 | |
use | Overhead out | Overhead out | Overhead out | Overhead out | |
Scheme number | 05 | 06 | 07 | 08 | |
Main wiring diagram | ![]() | ||||
Main electrical equipment | Rated current | 125,016,002,000 | |||
New circuit driver ZN85-40.5 | 1 | 1 | 1 | 1 | |
Current transformer LDBJ8(9)-35 | 2 | 3 | |||
Grounding switch IN22-40.5/31.5 | 1 | 1 | 1 | 1 | |
use | cable outlet | cable outlet | cable outlet | cable outlet | |
Scheme number | 09 | 10 | 11 | 12 | |
Main wiring diagram | ![]() | ||||
Main electrical equipment | Rated current | 125,016,002,000 | |||
New circuit driver ZN85-40.5 | 1 | 1 | 1 | 1 | |
Current transformer LDBJ8(9)-35 | 1 | 2 | 3 | ||
use | Left (right) contact | Left (right) contact | Left (right) contact | Left (right) contact | |
Scheme number | 13 | 14 | 15 | 16 | |
Main wiring diagram | ![]() | ||||
Main electrical equipment | Rated current | 125,016,002,000 | |||
New circuit driver ZN85-40.5 | |||||
Current transformer LDBJ8(9)-35 | 1 | 2 | 3 | ||
use | contact | contact | contact | contact | |
Scheme number | 17 | 18 | 19 | 20 | |
Main wiring diagram | ![]() | ||||
Main electrical equipment | Rated current | 125,016,002,000 | |||
New circuit driver ZN85-40.5 | 1 | 1 | 1 | 1 | |
Current transformer LDBJ8(9)-35 | 1 | 2 | 3 | ||
use | Cable in | Cable in | Cable in | Cable in | |
Scheme number | 21 | 22 | 23 | 24 | |
Main wiring diagram | ![]() | ||||
Main electrical equipment | Rated current | 125,016,002,000 | |||
New circuit driver ZN85-40.5 | 1 | 1 | 1 | 1 | |
Current transformer LDBJ8(9)-35 | 1 | 2 | 3 | ||
use | Overhead in | Overhead in | Overhead in | Overhead in | |
Scheme number | 25 | 26 | 27 | 28 | |
Main wiring diagram | ![]() | ||||
Main electrical equipment | Rated current | 125,016,002,000 | |||
Voltage transformer LDX9-35 | |||||
Fuse XPNP-35 | 2 | 3 | 2 | ||
Surge arrester YH5WS-51/134Q | 3 | ||||
| အသွင်အပြင်းက် SCB9-50-35/0.4 | 1 | ||||
use | Voltage transformer | Voltage transformer | Station usage changed | ||
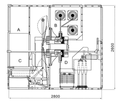
Dimensions and schematic diagram of ပြုပြင်ပါ structure
![]() | ![]() |
| Dimensions (WxDxH): 1400x2800x2600 | Schematic diagram of the structure of the ပြုပြင်ပါ A relay instrument room B bus room C circuit breaker room D cable |
Switch cabinet installation
1. Height of electrical room: ≥4500mm:
2. Distance from the back of the cabinet to the wall: ≥1500mm;
3. Flatness of foundation frame: ≤1mm/m?;
4. The part of the foundation embedded channel steel above the ground shall not exceed 3mm;
5. It can be fixed on the foundation by bolting or welding:
6. The weight of the ပြုပြင်ပါ is about 1800Kg:
7. Width of the ပြုပြင်ပါ operation corridor (single row): ≥3000mm, double row (face to face) ≥ 4000mm.
ဥပမာ ၊ consistency
the main scheme number of the secondary line, the single bus system diagram, the arrangement diagram and the layout diagram;
Secondary circuit electrical schematic diagram and terminal arrangement diagram:
the model, specification and quantity of electrical components of the ပြုပြင်ပါ;
Specifications and materials of main busbars and branch busbars:
Name and quantity of spare parts and spare parts:
Special requirements are agreed with the manufacturer.
ပုံစံ နည်းစနစ်၏ အဆက်အသွယ် ပြုပြင်မှုအတွက် အချက်အလက်အချက်အလက်များ အားလုံးကို မွန်ပာယာရဲ့ နောက်ဆုံး စီမံက် ဥပမာ ၊
Ordering instructions
The user should provide the following technical information when ordering:
အဓိပ္ပာယ်ကိရိယာ ၊ အခု ချာ့ ချမ်းသာပေးမှု အခု ၊
Indicate the specifications of the inlet and outlet cables.
Requirements for control, measurement and protection functions of ပြုပြင်ပါ and other requirements for latching and automatic devices.
ကွန်ပျူတာထဲမှာ အဓိက ရုပ်ပုံများရဲ့ ပုံစံ ၊ အတွင်း Switchgear ကတော့! ဒါပေမဲ့ ဝင်လာတဲ့ အုပ်စိုးက် ဒါပေမဲ့ ဒီဇင်ဘာလက် .
When ပြုပြင်ပါ is used in special environments, it should be detailed at the time of ordering.
Other special requirements.
Schematic diagram of the installation of ပြုပြင်ပါ
